恒溫恒濕實驗室設計圖恒溫恒濕實驗室設計圖
我們已經(jīng)跟大家分享了很多恒溫恒濕實驗室相關的技術問題了,最近些朋友電話過來找我們要恒溫恒濕實驗室設計圖,其實直接這樣拿恒溫恒濕實驗室設計圖意義不太大。要知道,我們做的恒溫恒濕實驗室都是需要深度跟客戶溝通,獲取最真實的需求后,才能做出滿意的恒溫恒濕實驗室設計圖的。不過可能有的朋友就是想先看下恒溫恒濕實驗室設計圖大概是個什么樣子的,好有一個輪廓,有一個概念吧,為了解決這個需求,我們就整理了一些恒溫恒濕實驗室設計圖供大家參考:
1.恒溫恒濕房設計圖

2.恒溫恒濕車間設計圖

3.恒溫恒濕實驗室設計圖

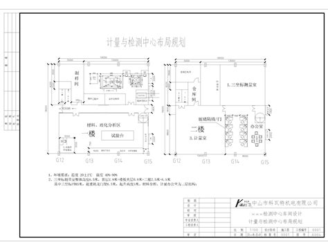
4.計量與檢測中心恒溫恒濕實驗室設計圖

最后,大家務必注意,請不要直接對照以上恒溫恒濕實驗室設計圖去猜想,去依葫蘆畫瓢哦,這樣出了問題后果比較嚴重,如有相關問題,務必聯(lián)系我們!